Mẫu biệt thự 4

Đánh giá của bạn:
Đánh giá: 5 sao

Diện tích xây dựng: 120m2
Quy mô: 1 hầm 1 trệt 2 lầu
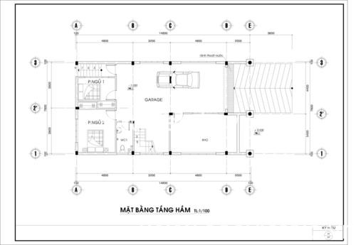
Tầng hầm: garage, 2 p.ngủ, kho
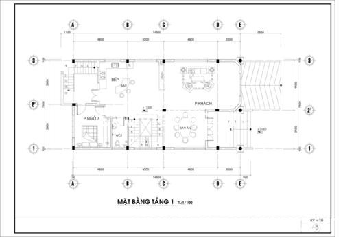
Tầng 1: 1 p.khách, p.ngủ, bếp
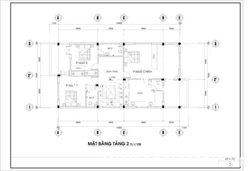
Tầng 2: 3 p.ngủ, 2 wc
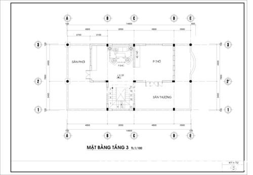
Tầng 3: 1 p.thờ, 1 p.SHC, sân thượng, sân phơi

Sao Việt Hà Nội

  • Số 28, An Trạch, Đống Đa, Hà Nội
  • CD/Fax: (84-04) 3974.6810 - 04-3974.7275
  • Hotline: 0904 258 747

Sao Việt Quảng Ninh

Công trình khác
Sao ViỆT A.I.C
Dự toán thiết kế
Chọn màu sơn nhà

- Chọn màu sơn tường theo tuổi chủ nhà

Dự trù vật tư hoàn thiện nhà

- Dự trù vật tư xây dựng cho từng phòng

Khái toán sơ lược nhà

- Khái toán sơ lược chi phí xây dựng

Tìm bản vẽ nhà mẫu

- Nhập kích thước nhà để tìm bản vẽ mẫu

Chọn tuổi làm nhà

- Xem tuổi bạn có phù hợp để xây nhà không

Phong thủy văn phòng

- Các hướng phát tài phát lộc